Loading...
×

RE/MAX Moldova

RE/MAX este o rețea internațională de birouri francizate deținute și operate în mod independent. În calitate de lider global al industriei, deschidem ușile agenților și aducem clienții noștri acasă. Nimeni în lume nu vinde mai multe proprietăți imobiliare decât RE/MAX.

Contactează-ne

THE #1

mun. Chișinău, str. București, nr. 26, sect. Centru

Locație și Concept "THE #1" este un proiect rezidențial exclusivist, situat în centrul istoric al Chișinăului, pe strada București 26. Construit într-un stil arhitectural eclectic, acest complex oferă locuințe de lux, realizate din materiale premium, care promit un trai confortabil și elegant, zi de zi. Este o oportunitate unică de a deveni unul dintre cei 20 de proprietari care vor beneficia de acest stil de viață rafinat.


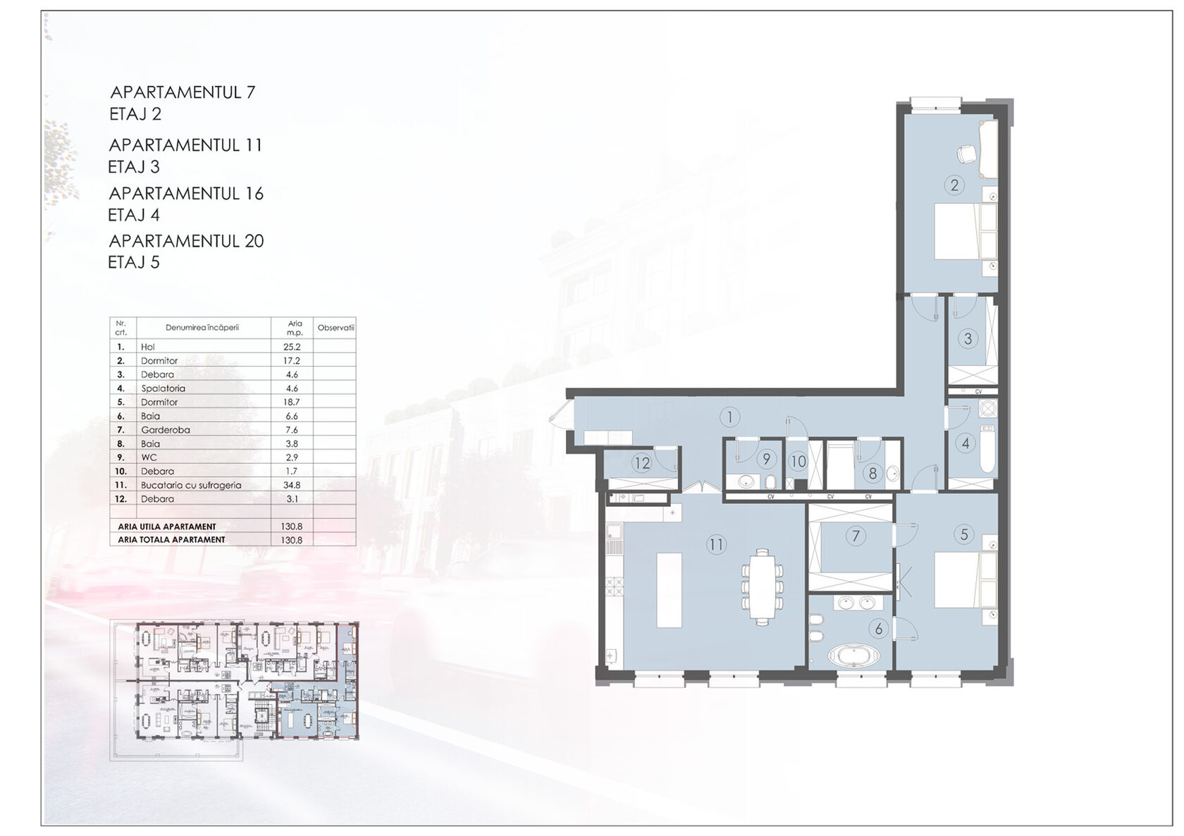
Suprafețe și Apartamente
"THE #1" este un complex rezidențial modern, ce pune la dispoziție apartamente variate, cu și fără terase, cu suprafețe generoase între 123 mp și 225 mp. Aceste locuințe sunt proiectate pentru a oferi un spațiu de locuit confortabil și funcțional, adaptat nevoilor contemporane.

Exclusivitate și Facilități
Complexul dispune de o singură scară, cu doar 20 de apartamente, ceea ce garantează intimitate și un mediu exclusivist. Înălțimea tavanelor este de 3.20 metri, iar locatarii beneficiază de locuri de parcare individuale, atât subterane (20 locuri), cât și supraterane (15 locuri). De asemenea, complexul include și spații comerciale situate în ultracentru, pentru un acces facil la toate facilitățile zonei.

Materiale și Tehnologii
Fiecare detaliu al complexului "THE #1" este realizat cu materiale de calitate superioară, utilizând cele mai noi tehnologii din domeniul construcțiilor. Acest lucru garantează atât confortul locatarilor, cât și durabilitatea și eficiența energetică a construcției.

Vânzări Directe
Aveți ocazia să achiziționați apartamentele și spațiile comerciale direct de la dezvoltator, beneficiind astfel de prețuri atractive și de condiții favorabile.

Fiecare agenție RE/MAX este deținută și operată în mod independent.

Copyright © RE/MAX Moldova 2020-2026. Toate drepturile rezervate.