Loading...
×

RE/MAX Moldova

RE/MAX este o rețea internațională de birouri francizate deținute și operate în mod independent. În calitate de lider global al industriei, deschidem ușile agenților și aducem clienții noștri acasă. Nimeni în lume nu vinde mai multe proprietăți imobiliare decât RE/MAX.

Contactează-ne

ANIMA

mun. Chișinău, Șoseaua Hîncești nr. 142/3, sect. Telecentru

Complexul Rezidențial „ANIMA” se află pe Șoseaua Hâncești, 142, în sectorul Telecentru din Chișinău, într-o zonă liniștită și curată, departe de aglomerația orașului. În apropiere se găsesc grădinițe, licee, magazine, spitale, farmacii, restaurante și centre comerciale.


Accesibilitate: Complexul este bine conectat la transportul public, având stații la doar două minute distanță. Gara feroviară și autogara sunt la 9 km, iar Aeroportul Chișinău la 16,9 km. Piața Marii Adunări Naționale este la 10 km.

Infrastructura și construcția:

  • Complexul include trei blocuri a câte 10 etaje fiecare, termoizolate cu geamuri termopane și sticlă LOW-e.
  • Fiecare apartament beneficiază de încălzire autonomă, ascensor modern, contoare individuale de apă, gaz și electricitate.
  • Rețelele de canalizare și apeduct sunt conectate până la ciclul 0, iar apartamentele sunt finisate „în versiune albă” cu pereți și tavane tencuite și pardoseală turnată cu polistiren.

Amenajări:

  • Parcare subterană pentru locatari și terenuri de joacă pentru copii.
  • Teritoriul complexului este păzit și bine întreținut.

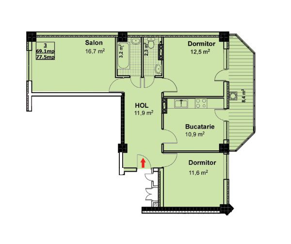
Apartamentele:

  • 1 cameră: 39-42 mp
  • 2 camere: 57-63 mp
  • 3 camere: 76 mp

Toate apartamentele au ușă metalică la intrare și sunt oferite cu finisaje „în versiune albă”.

Properties in ANIMA
Reset_filters

vandut

Chisinau - Telecentru

șos. Hâncești
Apartamente
90
3
1

Fiecare birou RE/MAX este deținut și operat în mod independent.

Copyright © RE/MAX Moldova 2020-2026. Toate drepturile rezervate.